ENSADELI 2

Cliente… Privado
Lugar… Plaza Cuicuilco, México DF
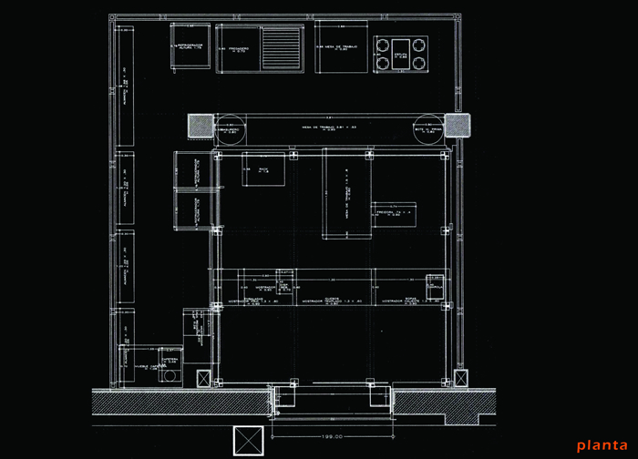
Área… 34 m² / 365.97 ft²
Fecha… 1997
Autor… Adriana Monroy / Armando Oliver

Ensadeli Plaza Cuicuilco fué el resultado del diseño y adaptación de un segundo local comercial en el área de comida rápida de una plaza comercial al sur de la Ciudad de México. El proyecto debía distinguirse por su alta calidad, utilizando materiales, colores, diseños, escalas y proporciones a través de una configuración arquitectónica que estuviera acorde con la intención conceptual de la plaza.
En un área de aproximadamente 34m² se adapto un nuevo espacio. La imagen se basó esencialmente en estructurar una caja de cristales modulados que dividía al local en dos secciones. Una parte interna o de preparación, almacenamiento y control de los alimentos y una externa para la atención a los clientes. Esta estructura de acero además de separar dichos espacios, hacia sentir al consumidor como si se encontrara dentro de una caja de ensalada. El contorno del espacio daba ese efecto con ayuda de los cristales difusos mientras que el piso era el resultado de la colocación de pedacería de cerámica que formalmente daba la ilusión de los ingredientes de una ensalada.
El diseño del local incluyo el logotipo, los menús y el mobiliario del mismo.